CENTRO PAULA SOUZA E ETEC SANTA IFIGÊNCIA - 2009

 

Autores: Pedro Taddei e Francisco Spadoni
Cliente: PMSP e Governo do Estado de SP
Escopo: Elaboração dos projetos funcional, básico e executivo.
Área: Terreno –  6.870 m².
Local: Centro, São Paulo/SP
Ano: 2009 - 2013


 
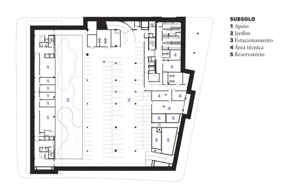
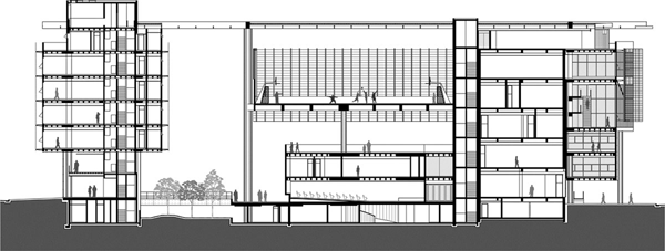
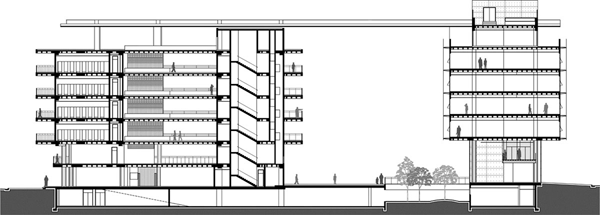
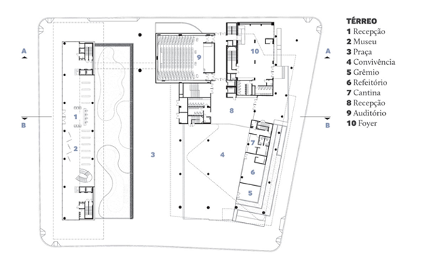
PROJETO
 
 
 
 
 
 
 
 
OBRA CONCLUÍDA - 2009
 

 

a

a
a

a
a
fotos: Nelson Kona
VOLTAR